Description

PROJECT NAME:- SERENITY SHIVAM
PROJECT RERA NO: – PR/GJ/AHMEDABAD/AHMEDABAD CITY/Ahmedabad Municipal Corporation/MAA12971/200224/311228
STATUS: – UNDER CONSTRUCTION
ADDRESS:- NEXT TO SERENITY SKY, SAFAL PARISAR ROAD, SOUTH BOPAL, AHMEDABAD 
GOOGLE LOCATION:- https://maps.app.goo.gl/9U6WqsMMAgRmt2ae7?g_st=com.google.maps.preview.copy
UNIT TYPE:- 3 BHK (1795 SQ.FT)
Total Unit:- 402 UNITS 344 – RESIDENCISL 58 – COMMERCIAL
Disclaimer:- This content is provided solely for informational purposes. Details about real estate projects, such as floor area and location, are gathered from multiple sources to the best of our ability. It is not intended as legal advice, marketing material, an offer, or a solicitation to buy from any organization. We recommend consulting the RERA website before making any decisions based on the information presented here.

Details

Property ID
PP0473
Bedrooms
3
Bathrooms
3
Property Size
1795 SQ.FT
Updated on May 11, 2025 at 9:24 am

Floor Plans

GROUND FLOOR PLAN

Description:

3BHK FIRST FLOOR PLAN

Price: ₹4,000 / SQ.FT/-*

Description:
*Terms and Condition Apply The price mentioned above is the average price of the area which may vary from project to project. Please visit the project in person to know the current price.

Rooms:
3
Baths:
3
Size:
1795*

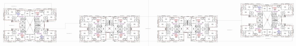
3BHK 2ND TO 19TH FLOOR PLAN

Price: ₹4,000 / SQ.FT/-*

Description:
*Terms and Condition Apply The price mentioned above is the average price of the area which may vary from project to project. Please visit the project in person to know the current price.

Rooms:
3
Baths:
3
Size:
1795

3BHK 5TH TO 17TH FLOOR PLAN

Price: ₹4,000 / SQ.FT/-*

Description:
*Terms and Condition Apply The price mentioned above is the average price of the area which may vary from project to project. Please visit the project in person to know the current price.

Rooms:
3
Baths:
3
Size:
1795

3BHK 20TH FLOOR PLAN

Price: ₹4,000 / SQ.FT/-*

Description:
*Terms and Condition Apply The price mentioned above is the average price of the area which may vary from project to project. Please visit the project in person to know the current price.

Rooms:
3
Baths:
3
Size:
1795/-*

3BHK 21ST FLOOR PLAN

Price: ₹4,000 / SQ.FT/-*

Description:
*Terms and Condition Apply The price mentioned above is the average price of the area which may vary from project to project. Please visit the project in person to know the current price.

Rooms:
3
Baths:
3
Size:
1795/-*

3BHK 22TH FLOOR PLAN

Price: ₹4,000 / SQ.FT/-*

Description:
*Terms and Condition Apply The price mentioned above is the average price of the area which may vary from project to project. Please visit the project in person to know the current price.

Rooms:
3
Baths:
3
Size:
1795/-*

TERRACE FLOOR PLAN

Description:

1ST BASEMENT PLAN

Description:

2ND BASEMENT PLAN

Description:

Address

  • City Ahmedabad
  • State/county GUJARAT
  • Area SOUTH BOPAL
  • Country INDIA

Similar Listings

Compare listings

Compare
proppost1
  • proppost1